Die DOBNER GUTWERT GmbH gehört zur Unternehmensgruppe
BRF FRIEDRICHSHAIN GmbH und ist Hersteller der abgehängten
ORIGINAL DOBNER Metalldecken

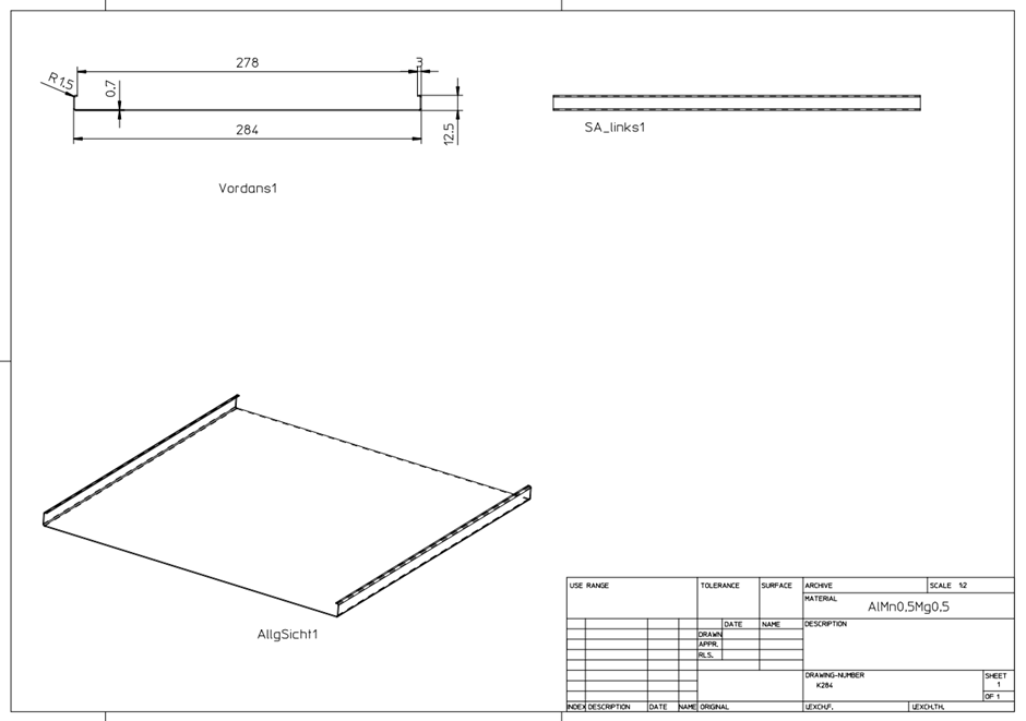
Abgehängte ORIGINAL DOBNER Aluminium-Paneeldecke Typ K-284 / KP-284
mit offenen Fugen