Die DOBNER GUTWERT GmbH gehört zur Unternehmensgruppe
BRF FRIEDRICHSHAIN GmbH und ist Hersteller der abgehängten
ORIGINAL DOBNER Metalldecken

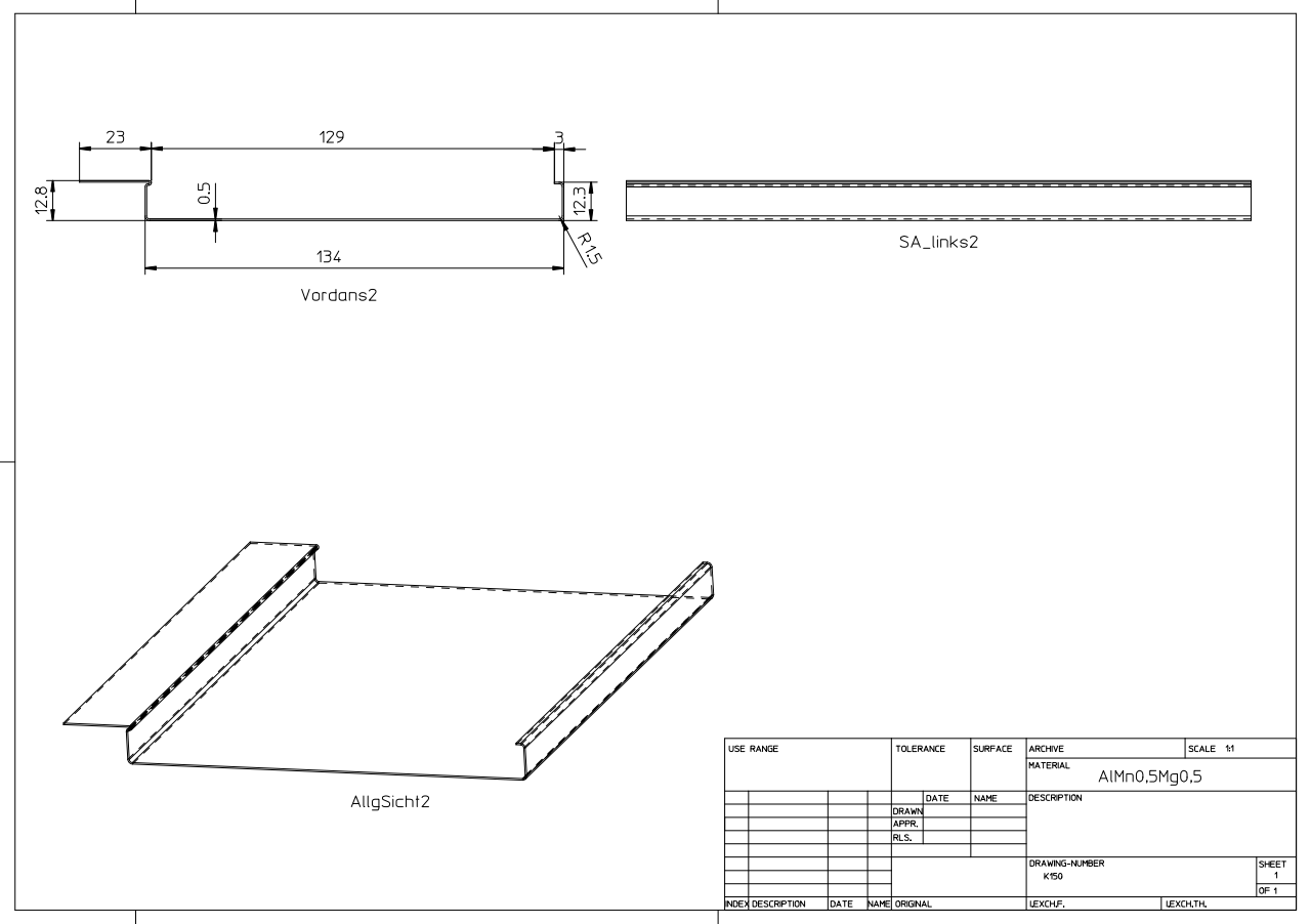
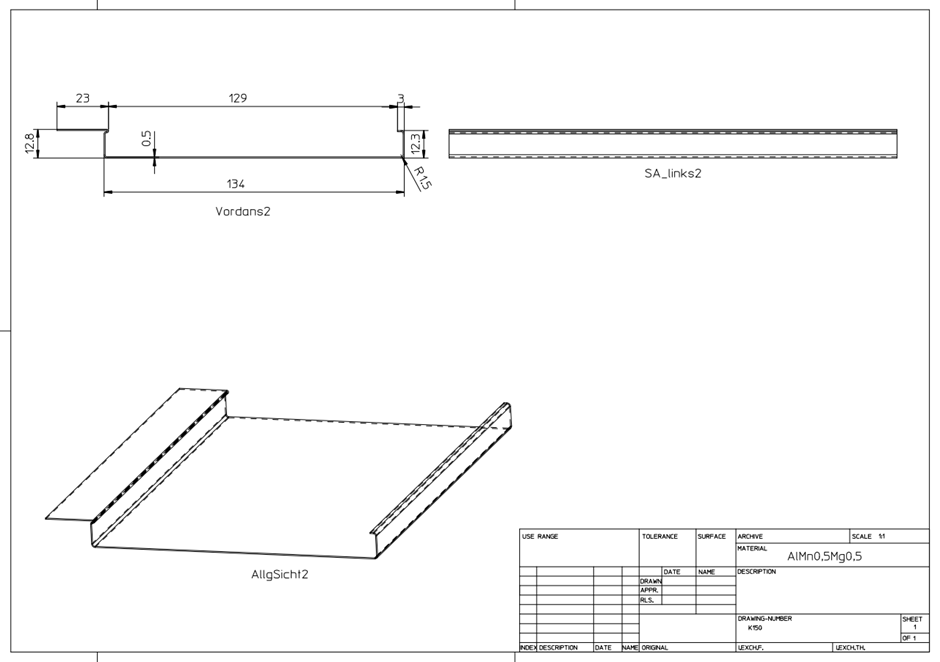
Abgehängte ORIGINAL DOBNER Aluminium-Paneeldecke Typ K-150 / KP-150
mit geschlossenen Fugen